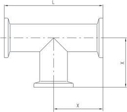
ISO Tapered™ tees (glass)
NW: 80...160
Material: Glass

All dimensions in mm
產品詳細資料
Applications
 
- Inspectable flanges for process control, plasma and oven
- Insertion of (UV) laser light into reaction tube (quartz flange)
- UV protection with Duran® flanges
- Quartz for lowest UV absorption
- Vacuum up to 10E-9 mbar
- Temp. range of quartz up to 1000 degC / Duran® up to 450 degC
- Pressure up to 2 bar
- Minimum temperature -30 degC
- For ultra pure processes as ion implanters etc. (quartz)
 
 
ISO Tapered™ tees (glass)
NW L X
80 196 98
100 216 108
125 236 118
160 276 138
 
 
Type NW Duran® Quartz
80 33.080007.261.708 33.080008.261.808
100 33.100007.261.710 33.100008.261.810
125 33.125007.261.712 33.125008.261.812
160 33.160007.261.716 33.160008.261.816